2015年8月12日11时30分,天津滨海新区港务集团瑞海物流危化品堆垛发生爆炸。现场火光冲天,腾起蘑菇云,爆炸产生强烈震感,河北多地亦能感觉到。


爆炸现场腾起“蘑菇云”(图片来自网络)
8月12日22时50分,天津消防总队9个中队和港务局码头3个专职队赶赴现场扑救。两次爆炸继而发生,第一次爆炸发生在12日23时34分6秒,第二次爆炸在30秒种后并造成更大震感,两次爆炸相当于24吨TNT当量,蘑菇云腾空,两公里内建筑玻璃全部被震碎,附近车辆,楼房呈现一片废墟。火灾发生时有7个集装箱发生爆炸,引燃周边建筑物和停车场及露天堆场发生爆炸,爆炸面积约5300平方。截至13日下午16时许,此次爆炸事故已造成44人死亡,其中12名消防官兵遇难,住院治疗521人,其中重症伤员52人。







据中国地震台网速报 地震台网清晰记录到了本次爆炸事故,从结果看有两次爆炸,第二次更大一些。

起火并发生爆炸的港务集团瑞海物流危化品堆垛,位于天津滨海新区第五大街与跃进路交叉口附近。

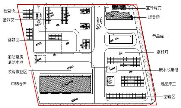
港务集团瑞海物流公司平面图。


此次事故事发地位于瑞海公司危险品物流仓库,该公司网站上显示的仓库厂区图。
据天津东疆保税港区瑞海国际物流有限公司官网介绍,该公司成立于2011年,是天津口岸危险品货物集装箱业务的大型中转、集散中心,是天津海事局指定危险货物监装场站和天津交委港口危险货物作业许可单位。公司以经营危险化学品集装箱拆箱、装箱、中转运输、货物申报、运抵配送及仓储服务等业务为主,目前员工70人。年货运吞吐量100万吨,年营业收入达3000万元以上。公开信息显示,发生爆炸的天津瑞海国际物流有限公司去年曾举行数次危化品泄漏事故演练和隐患排查。
据瑞其官网信息,该公司仓储业务分为以下7类(原文没有第一类):
第二类:压缩气体和液化气体(氩气、压缩天然气等);
第三类:易燃液体(甲乙酮、乙酸乙酯等);
第四类:易燃固体、自燃物品和遇湿易燃物品(硫磺、硝化纤维素、电石、硅钙合金等);
第五类:氧化剂和有机过氧化物(硝酸钾、硝酸钠等);
第六类:毒害品(氰化钠、甲苯二异氰酸酯等);
第八、九类:腐蚀品、杂类(甲酸、磷酸、甲基磺酸、烧碱、硫化碱等);
中共中央总书记、国家主席、中央军委主席习近平对天津滨海新区危险品仓库爆炸做出重要指示,要求尽快控制消除火情,全力救治伤员,确保人民生命财产安全。中共中央政治局常委、国务院总理李克强就救援和应急处置工作做出批示。13日凌晨,天津市官方发布消息称,爆炸原因正在调查核实中,天津市委代理书记、市长黄兴国要求尽快查清事故原因,做好善后工作,相关企业负责人已被控制。
根据天津市滨海新区塘沽环境保护监测站于2014年8月出具的一份关于“天津东疆保税港区瑞海国际物流有限公司跃进路堆场改造工程”的环保验收报告(该文件中对项目的描述和媒体报道的“吉运二道95号”以及“46226.8㎡”的项目占地面积一致),验收项目已“新建2个仓库,仓库一采用隔断式设计,部分功能区用于存放电石和硅钙合金……仓库二仓库用于存放氰化钠和甲苯二异氰酸酯(TDI)等”。根据该报告,氰化钠的毒性分级属于“极度危害”,属于须使用“剧毒物质”毒害标识的危险化学品。仍未有消息确认事发仓库具体储存的是何种危化品。然而,发生爆炸的瑞海国际物流有限公司官网现现已被禁止访问。

本次爆炸北京公安消防总队派出无人机进行跨区救援,同时赴汤蹈火的消防员们也被各路网友称为“世上最美的逆行”。

致敬奋不顾身的消防官兵——最可爱的人,最美的逆行!
【以上图片均来自网络】